مقالات درب و پنجره دوجداره و مشتقات
روش کامل و اصولی شستشو و نظافت توری پلیسهای را توضیح میدهیم تا بدون آسیب رساندن به توری، آن را به ...
دو سیستم مختلف در صنعت نما و پنجرههای ساختمانی هستند. هرکدام ویژگیها، کاربردها و عملکرد خاص خود ر ...
کرتین وال یک سیستم نمای مدرن و شیشهای است که در ساختمانهای تجاری و اداری استفاده میشود. برای نصب ...
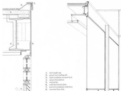
دیتیل کرتین وال شامل نقشههای فنی، مقاطع اجرایی و جزئیات اتصالات در سیستم نمای کرتین وال است ...
اتصالات کرتین وال شامل روشها و قطعاتی هستند که برای نصب، اتصال و تثبیت اجزای کرتین وال به یکدیگر و ...
براکتهای کرتین وال بر اساس نوع عملکرد و نصب به چند دسته تقسیم میشوند: ...
در سیستم کرتین وال مولیون و ترنزوم دو جزء کلیدی در ساختار قاببندی هستند که به استحکام و عملکرد سازه ...
مولیون و وادار اجزای مکمل در پنجرهها هستند که هر یک وظیفهای خاص بر عهده دارند. مولیون در تقسیم شیش ...
پروفیلهای آلومینیومی اس تی و کرونت هر دو انتخابهای مناسبی برای پروژههای ساختمانی و صنعتی هستند. ...
ترکیب پروفیل T برای فریم و فلاشنک برای عایقبندی باعث میشود که پنجره بهخوبی در برابر فشارهای بیرون ...
پنجرههای آلومینیومی ترمال بریک در کرج بهویژه در مناطق با تغییرات دمایی زیاد و رطوبت بالا، عملکرد ب ...

صدور ضمانتنامه English